Navigation überspringen Sitemap anzeigen

System MB-SR50N
Das Fassadensystem reich an Lösungen

Charakteristik

Das Säule-Riegel-Fassadensystem MB-SR50N ist die ideale Lösung, die zur Konstruierung und Erfüllung von leichten Schutzwänden, Dächern, Oberlichtern und anderen Typen der Raumkonstruktionen entworfen wurde. Sein großer Vorteil ist die Zusammenanpassung von Säule und Riegel in der Innenseite, was den Trends der modernen Architektur entspricht. Die Außenseite kann man, dagegen frei entwerfen um sie an das Aussehen der Außenseite des Gebäudes an zu passen. Das Säule – Riegel Fassadensystem MB-SR50N besitzt sehr gute Wärmedämmungseigenschaften. Das System wurde im PHI Institut in Darmstadt in Deutschland überprüft und hat den Zertifikat in der höchsten Klasse A+ erhalten, dank dem er mit Erfolg in Passivhäuser Bau verwendet werden kann. Eine andere Variante dieses Systems ist die Fassade MB-SR50N HI+, in der das spezielle zwei- Teilige Isolator verwendet wurde, der zusätzlich die Wärmedämmungseigenschaften erhöht.

Ein großer Vorteil des Systems MB-SR50N ist die Möglichkeit ihm mit anderen Fenstern: Kipp-Schiebe, oder mit integrierten Fassaden, zu verbinden. Das System wird von Architekten sehr geschätzt, weil es ihnen sehr mutige Konstruktionen entwerfen lässt.

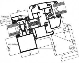
Querschnitt durch den Riegel

Querschnitt durch den Pfosten – 7,5º

Das Säule – Riegel- Fassadensystem MB-SR50N ermöglicht den Bau von sehr interessanten Konstruktionen.

FASSADENSYSTEM MB-SR50N IW

Das Fassadensystem MB-SR50N EFFEKT ermöglicht die Herstellung von einer Fassade, in der die Innenseite wie eine riesige Glastafel aussieht. Das sieht sehr effektiv aus und ist häufig von Architekten verwendet. In der Fassade ist ein spezielles System der Scheibenbefestigung verwendet, dank dem man mit Erfolg große und schwere Eins- oder Zwei-Kammer Glasvereinigungen verwenden kann. Der Raum zwischen den Glasscheiben beträgt ca. 2 cm und ist meistens mit Silikon ergänzt.

FASSADENSYSTEM MB-SR50N IW

Das Fassadensystem MB-SR50N IW ermöglicht die Verwendung von Fassaden- Konstruktion des integrierten Fenster das sich nach Innen öffnet. Das Fenster ist mit Säulen und Riegel integriert, dank welchem es sich von Außen, von den Nachbaren mit Festverglasung, nicht unterscheidet. Dieses System kann mit Erfolg in Standard, wie auch in der EFEKT Fassade dienen.

MB-SR50N IW – Standardausführung
Querschnitt durch den Pfosten mit Fenster

MB-SR50N IW – Ausführung EFEKT
Querschnitt durch den Pfosten mit Fenster

FASSADENSYSTEM MB-SR50N OW

Das Fassadensystem MB-SR50N OW wird benutzt um Kipp-Schiebe Fenster, die mit der Fassade integriert sind, an zu fertigen. Diese Typen von Fenstern ermöglichen eine gute Lüftung des Räumes, und sind dabei sehr Kompakt und lassen uns viel Platz in innen. In diesem System wurde die Technologie des strukturell-Kleben verwendet, dank dem sich die Linie der Elevation von der Innenseite nicht unterscheidet, unabhängig von den Typ des Kipp-Schiebe Fensters oder der Festverglasungs Fläche.

FASSADENSYSTEM MB-SR50N RW

Das Fassadensystem MB-SR50N RW ermöglicht die Herstellung von Dachfenstern mit integrierter Fassade. Sie können als Luftklappe oder Antirauchfenster dienen. Fenster in diesem System kann man auf einem Dach montieren, auf welchen der Neigungswinkel im Abteil von 5 bis 75 Grad im Verhältnis zum Stand, ist.

Produkthighlights

FLÄCHENBINDUNG DER SÄULEN UND RIEGEL VON DER INNENSEITE

Das System wurde so entworfen, dass die Innenlinien der Säule und des Riegel zusammenkommen, und damit eine harmonische Konstruktion schaffen, die den Trends der modernen Architektur entspricht.

REICHE MENGE AN LÖSUNGEN VON DER AUSSENSEITE

Das System MB-SR50N ermöglicht in Abhängigkeit der Bedürfnisse und Visionen des Architekten die Verwendung von verschiedenen Lösungen aus der Außenseite der Fassade ohne der Notwendigkeit, Änderungen an die Konstruktionen oder die Säule zu machen. Man kann in diesem Fassadensystem Strukturell-Fassaden, Fassaden mit integrierten Fenstern die sich nach Innen öffnen und Kipp-schiebe-Fenster entwerfen.

THERMOISOLIERUNG

Im Fassaden System MB-SR50N HI+ wurde ein spezieller Isolator aus dem PE Material verwendet, welcher die Thermoisolierung (Uf ab 0,7 W/m2K) steigert. Zusätzlich worden feste thermo- Trennblätter – die aus dem Isoliermaterial HPVC gemacht worden sind – verwendet. Die Glas Dichtungen aus EPDM erlauben die Entsprechende Klasse der Warmisolierung zu erreichen und eliminieren das Einträufeln des Wasserdampfes auf Aluminiumelementen. Dieses System wurde im Institut PHI im Darmstadt überprüft und kann mit Erfolg in Passivhäusern verwendet werden.

ÄSTHETIK DER AUSFÜHRUNG

Das System MB-SR50N wurde so entworfen, damit es schlüssig und ästhetisch ist. Die Säule und Riegel sind mit scharfen Ränden beendet. Gebundene Säule und Riegel von der Innenseite, wie auch die Möglichkeit der Integrierung der Geöffneten Fenster, Dachfenster und Kipp-Schiebe Fenster mit der Außenlinie der Fassade machen, dass die Konstruktion von beiden Seiten sehr modern und leicht aussieht.

SCHALLSCHUTZ

In der Fassade MB-SR50N gibt es die Möglichkeit breite verbündete Scheiben-Pakete, sogar bis zu 56 mm Dicke, zu verwenden. Im Standard im Inneren wird das Trennblatt aus dem PE-Material benutzt, dank diesem die Schalldämmungseigenschaften erhöht wird.

STABILITÄT UND FESTIGKEIT

Die Säule-Riegel Fassade MB-SR50N erhielt sehr gute Noten in Belastungen von Wind, Schlägen, Wasserdichtung und Winddurchlässigkeit. Es Ist speziell entworfen, um sehr große und sichere Konstruktionen, die mit Verbundenen Scheiben im bedeutsamen Massen ausgestattet sind, zu bauen.

FARBEN

Das Fassaden System MB-SR50N ist einer reichen Farbgebung erhältlich.

STANDARD FARBEN RAL

SONDERFARBEN RAL

Und alle sonstigen Farben aus der RAL-Palette.

METALLIC-LACKIERUNGEN

HOLZDEKORE

Zum Seitenanfang